所屬分類: 自力式壓力調節閥
傳統的氮氣密封裝置(氮氣密封閥)由三部分組成:氮氣供應閥、氮氣排放閥和呼吸閥。當罐內壓力超過設定值時,ZZYVP供氮閥關閉,氮氣安全閥打開,迅速釋放罐內多余壓力。當儲罐內壓力下降時,氮氣排放閥關閉,供氮閥打開,將氮氣注入罐內,使儲罐處于微正壓。
產品詳情
傳統的氮氣密封裝置(氮氣密封閥)由三部分組成:氮氣供應閥、氮氣排放閥和呼吸閥。當罐內壓力超過設定值時,供氮閥關閉,氮氣安全閥打開,迅速釋放罐內多余壓力。當儲罐內壓力下降時,氮氣排放閥關閉,供氮閥打開,將氮氣注入罐內,使儲罐處于微正壓。供氮閥的氮源壓力保持在0.2-0.8MPa的固定值。如果現場壓力較高,在供氮閥前加裝自動調壓閥,將壓力提高到0.8MPa以下,使用效果好。
供氮閥不需要外部能量,以被調節介質的壓力為動力源,自動控制壓力。在閥門或儲罐壓力之后保持罐壓力恒定。廣泛應用于化工儲罐氮氣密封、超純水氮氣密封、食用油氮氣密封、導熱油罐氮氣密封等需要與空氣隔絕的氮氣密封保護系統。
供氮閥特點:控制精度比一般直動式壓力控制閥高約2倍。大調節壓差比(閥前0.8MPa、閥后0.0003MPa等)特別適用于低壓氣體控制。
壓力設定由先導實現,方便、快捷、省時,在運行狀態下可連續設定。
供氮閥工作原理
供氮裝置結構將罐頂壓力點的介質通過導壓管引入檢測機構,對檢測元件產生作用力。彈簧和預緊力。當罐內壓力低于供氮裝置壓力設定值時,失去平衡,先導閥芯打開,閥前氣體流入主閥上下執行機構。膜室通過減壓閥和節流閥打開,閥心打開,罐內充滿氮氣。當罐內壓力升到供氮裝置壓力設定值時,預設彈簧力和主閥執行器關閉先導閥芯,彈簧作用關閉主閥,停止供氮。
供氮閥技術參數
| 公稱通徑DN | 20 | 25 | 32 | 40 | 50 | 65 | 80 | 100 | 125 | 150 | 200 |
| 額定KV值 | 7 | 11 | 20 | 30 | 48 | 75 | 120 | 190 | 300 | 480 | 760 |
| 公稱通徑DN | 20、25 | ||||||||||
| 2 | 3 | 4 | 5 | 6 | 7 | 8 | 9 | 10 | 12 | 15 | |
| 額定KV值 | 0.02 | 0.08 | 0.12 | 0.20 | 0.32 | 0.5 | 0.8 | 1.2 | 1.8 | 3.2 | 5 |
| 固有流量特性 | 快開、線性、修正線性 | ||||||||||
| 調節精度 | ±5% | ||||||||||
| 壓力調節范圍(KPa) | 0.5~2.0、1~6、5~10、9~15、12~19、18~25、22~30、28~35、32~40、38~50、48~60、58~72、70~100 | ||||||||||
| 允許泄漏量 | 軟密封:VI級;硬密封:IV級(10-4×KV)(參見GB/T4213-2008) | ||||||||||
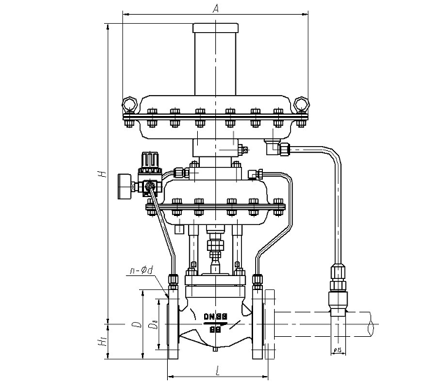
供氮閥(供氮裝置)外形尺寸

供氮閥外形尺寸圖
| 公稱通徑DN | 15 | 20 | 25 | 32 | 40 | 50 | 65 | 80 | 100 | 125 | 150 | 200 |
| L | 130 | 150 | 160 | 180 | 200 | 230 | 290 | 310 | 350 | 400 | 480 | 600 |
| H | 690 | 690 | 690 | 705 | 705 | 760 | 800 | 800 | 840 | 880 | 980 | 1050 |
| A | Φ308、Φ394 | |||||||||||
| L1 | 233 | 233 | 233 | 332 | 332 | 373 | 572 | 572 | 673 | 980 | 980 | 1200 |
| P≥ | 135 | 135 | 170 | 220 | 220 | 235 | 245 | 325 | 425 | 550 | 660 | 900 |
| H1 | 330 | |||||||||||
| 重量(kg) | 18 | 18 | 18 | 25 | 27 | 42 | 65 | 80 | 108 | 182 | 260 | 305 |
上一條:ZZYVP自力式微壓調節閥
下一條:ZZYP自力式蒸汽調節閥
相關產品
相關新聞
利沃夫調節閥廠家是一家在自控閥門等領域有著多年生產和服務經驗的專業廠家,提供各種氣動調節閥, 電動調節閥, 自力式壓力調節閥, 切斷閥等自控閥門,產品廣泛應用于行業控制系統、石油、化工、電力、水處理、礦用等領域。